Merci ! Nous allons vous recontacter dès que possible.

Une erreur s'est produite. Vous pouvez essayer de nous contacter via la page de contact en nous précisant le bien qui vous intéresse.

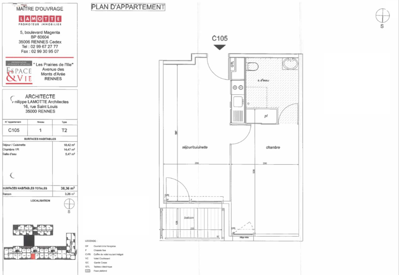
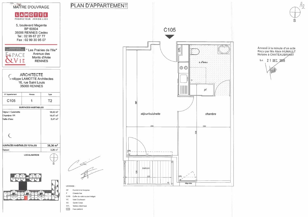
Appartement T2

RENNES

161 585 €

155 000€ (net vendeur) + honoraires de négociation : 6 585 € soit 4.25% à la charge de l'acheteur

2 pièces

38.18

Descriptif du bien

RENNES - Résidence services séniors "Espace et Vie" La Bellangerais.
Au sein d'une résidence récente avec ascenseur idéalement placée, ce T2, au premier étage, se compose d'une pièce de vie avec kitchenette équipée et aménagée, un balcon exposé Sud sans vis à vis, une chambre individuelle avec Sde et wc PMR.
Appartement en parfait état, bail commercial avec loyer de 6737 euros/an TTC.
La résidence dispose sur place de services annexes à l'hébergement pour le bien être des résidents (restauration, entretien du linge, présence du personnel 24h/24h, animations, etc.)
Proche commerces.
Les informations sur les risques auxquels ce bien est exposé sont disponibles sur le site Géorisques : www. georisques. gouv. fr (4.25 % honoraires TTC à la charge de l'acquéreur.)
Copropriété de 220 lots - dont 155 lots habitation. (Pas de procédure en cours).

Charges annuelles : 1400 euros.

Dépenses énergétiques

Grand Angle - Office notarial

Notre collaborateur à votre service

Alessandro Drouin

Alessandro Drouin , notre négociateur immobilier vous aide à construire votre projet.
Vous souhaitez revendre votre logement pour acheter un autre plus adapté à vos besoins et à vos moyens ?
Vous souhaitez revendre ou acheter votre bien suite à une mutation professionnelle ?

 

Contacter l'office