Merci ! Nous allons vous recontacter dès que possible.

Une erreur s'est produite. Vous pouvez essayer de nous contacter via la page de contact en nous précisant le bien qui vous intéresse.

Maison T2

CESSON SEVIGNE

169 900 €

163 000€ (net vendeur) + honoraires de négociation : 6 900 € soit 4.23% à la charge de l'acheteur

2 pièces

175

Descriptif du bien

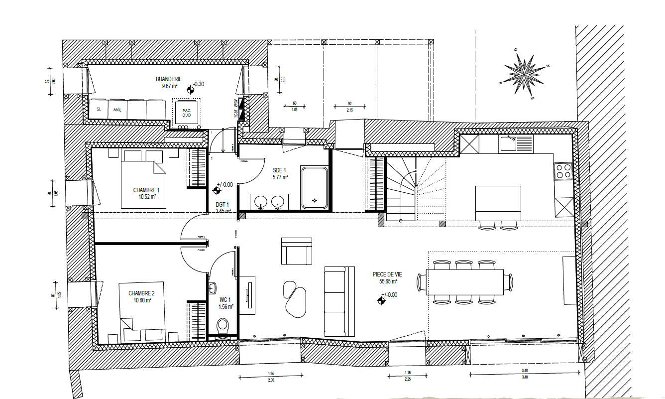
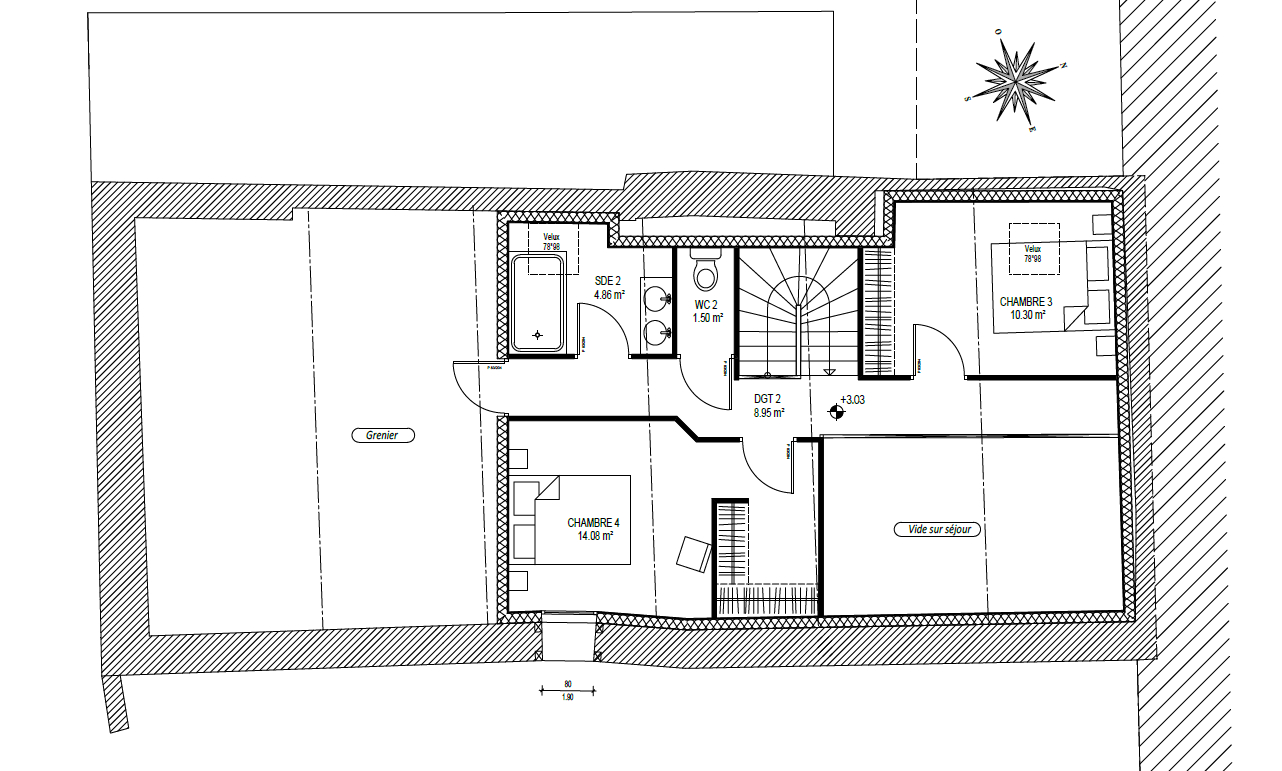
En exclusivité à CESSON SEVIGNE route de Fougères en direction de Thorigné Fouillard, grange à rénover composée au RDC d'une grande pièce principale avec une belle hauteur et grenier au dessus. Cellier sur l'arrière et dépendance non attenante à usage de garage ou stockage.
Terrain de 1672 m² borné, viabilisation faite, réseau en attente devant la maison.
Prévoir rénovation complète avec une surface potentielle de 170 à 180m² habitables.
Projet de rénovation pour illustration (bien vendu libre) pour une surface de 137m² avec grenier et vide sur séjour. Détails du projet sur demande, le permis est prêt à être déposé.
Les informations sur les risques auxquels ce bien est exposé sont disponibles sur le site Géorisques : www. georisques. gouv. fr (4.23 % honoraires TTC à la charge de l'acquéreur.)

Dépenses énergétiques

Grand Angle - Office notarial

Notre collaborateur à votre service

Alessandro Drouin

Alessandro Drouin , notre négociateur immobilier vous aide à construire votre projet.
Vous souhaitez revendre votre logement pour acheter un autre plus adapté à vos besoins et à vos moyens ?
Vous souhaitez revendre ou acheter votre bien suite à une mutation professionnelle ?

 

Contacter l'office